Vila Ciudad Quesada mieste

Ciudad Quesada

960,000 €

3,721 € / m²

Aprašymas

„Villa Numa“ – išskirtinis vilų kompleksas dideliame, išskirtiniame sklype, geidžiamoje ramioje Ciudad Quesada vietovėje.

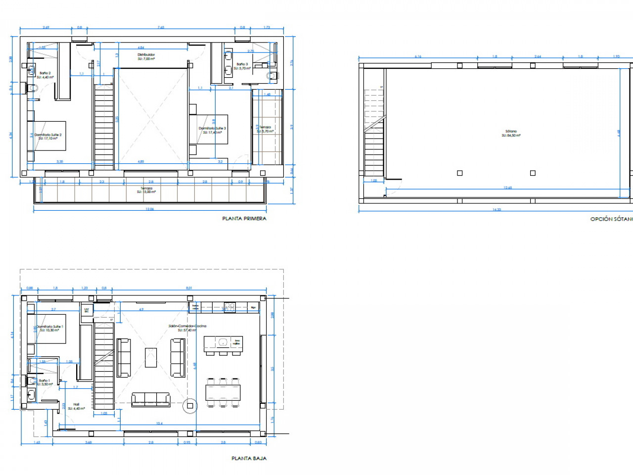
Kiekvienoje viloje yra trys miegamieji, trys elegantiški vonios kambariai, šviesi svetainė ir stilinga virtuvė, visa tai suprojektuota maksimaliam komfortui ir funkcionalumui.

Pirmame aukšte yra šviesi ir atvira svetainė, moderni virtuvė, miegamasis ir vonios kambarys. Antrame aukšte yra du miegamieji, du vonios kambariai ir kelios terasos.

Vila yra dviejų aukštų, su galimybe už papildomą mokestį įrengti rūsį ir, jei pageidaujama, pastatyti du papildomus miegamuosius ir vonios kambarį.

Vila siūlo didelį ir mielą sodą su privačiu baseinu, puikiai tinkančiu mėgautis ispanišku klimatu su šeima ir draugais. Teritorijoje yra privati ​​automobilių stovėjimo aikštelė dviem automobiliams. Šios modernios vilos yra įsikūrusios ant pakeltos vietos, iš kurios atsiveria gražus vaizdas į apylinkes, jūros ir druskos ežero vaizdas.

Vila yra Ciudad Quesada mieste, vos už kelių minučių nuo daugybės patogumų, tokių kaip supermarketai, restoranai ir barai. Vos 10 minučių kelio nuo „La Marquesa Golf“ – vieno prestižiškiausių Kosta Blankos aikštynų – gyventojai gali mėgautis aukščiausio lygio golfo patirtimi, apsupti tradicijų ir kokybės. Puikus privažiavimas leidžia per 20 minučių pasiekti Alikantės oro uostą, o per 15 minučių – Guardamar, La Mata arba Torrevieja paplūdimius.

Completion: 2026-03-31

Išsami informacija
  • Objekto ID: 2333
  • Kaina: 960,000 €
  • Plotas: 258 m²
  • Miegamieji: 3
  • Vonios kambariai: 3
  • Tipas: Vila
Patogumai
  • Automobilio stovėjimo vieta
  • Netoli parduotuvės
  • Oro kondicionierius
  • Privatus baseinas
  • Rūsys
  • Terasa
Rodyti daugiau
Žemėlapis