Bungalas Pilar de la Horadada mieste

Pilar de La Horadada

369,000 €

4,193 € / m²

Aprašymas

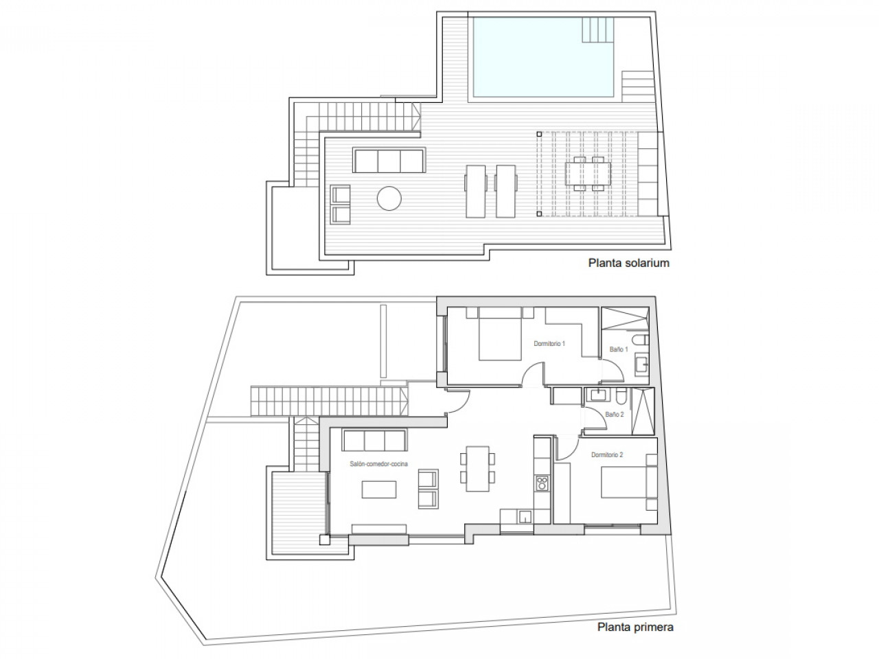
Naujas aukštos kokybės, į pietus orientuotų maisonetų projektas su privačiu baseinu, įsikūręs Pilar de la Horadada centre.

Galite rinktis pirmo aukšto maisonetą su erdvia terasa arba antro aukšto būstą su privačia terasa ir soliariumu. Abu variantai turi du miegamuosius su įmontuotomis spintomis ir du šiuolaikiško stiliaus vonios kambarius (vienas iš jų – privatus, prie pagrindinio miegamojo).

Be to, pirmo aukšto maisonetui priklauso privatus baseinas, uždaras parkingas ir sodas. Antro aukšto maisonetas turi soliariumą su vaizdu į jūrą bei privatų baseiną – puiki vieta mėgautis Viduržemio jūros klimatu. Priklauso ir automobilio stovėjimo vieta.

Netoliese rasite keletą restoranų, prekybos centrų, parduotuvių ir vaistinių. Per trumpą laiką automobiliu ar dviračiu pasieksite nuostabius Torre de la Horadada paplūdimius, uostą, kelis prekybos centrus ar gerai žinomą Lo Romero golfo aikštyną. Šie namai lengvai pasiekiami iš Alikantės oro uosto (45 minutės kelio).

Išsami informacija
  • Objekto ID: 2376B
  • Kaina: 369,000 €
  • Plotas: 88 m²
  • Miegamieji: 2
  • Vonios kambariai: 2
  • Tipas: Bungalas
Patogumai
  • Netoli parduotuvės
  • Privatus baseinas
  • Soliariumas
Rodyti daugiau
Žemėlapis